专业实验室整体解决方案提供商
服务热线:
18906179292
网站首页
关于科蓝
企业简介
新闻资讯
行业新闻
常见问题
产品中心
实验台
通风柜
中央台
实验柜
通风系统
气路系统
纯水系统
废气处理
净化工程
实验室配件
实验室装修
效果图
工程案例
解决方案
联系我们
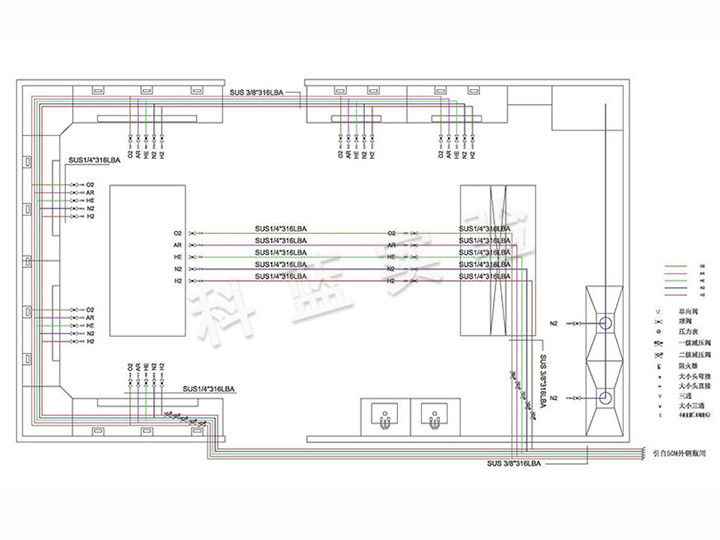
气路系统
当前位置:
首页
>
产品中心
>
气路系统
实验台
钢木实验台
钢木实验台
全钢实验台
全钢实验台
不锈钢实验台
不锈钢实验台
PP实验台
PP实验台
天平台
天平台
通风柜
全钢通风柜
全钢通风柜
落地通风柜
落地通风柜
PP通风柜
PP通风柜
不锈钢通风柜
不锈钢通风柜
中央台
实验柜
气瓶柜
气瓶柜
药品柜
药品柜
器皿柜
器皿柜
衣柜
衣柜
安全柜
安全柜
毒麻药品柜
毒麻药品柜
通风系统
气路系统
纯水系统
废气处理
净化工程
实验室配件
万向罩
万向罩
化验龙头
化验龙头
冲淋器、洗眼器
冲淋器、洗眼器
水槽、水架、环槽
水槽、水架、环槽
气体考克
气体考克
台面
台面
推车、框架
推车、框架
椅、凳
椅、凳
实验室装修
效果图
实验室效果图
实验室效果图
通风效果图
通风效果图
废气效果图
废气效果图
气路效果图
气路效果图
实验室装修效果图
实验室装修效果图
实验室鸟瞰图
实验室鸟瞰图
气路系统
上一篇:
气路系统
下一篇:
不锈钢管路
◇◇
相关内容
◇◇
气路系统
气路系统
气路系统
气路系统
气路系统
气路系统